De schaal
De diameter van de bol is niet willekeurig gekozen maar is ontleend aan de diameter van de aarde en wel: schaal 1:250.000 = Ø 51.2 meter. Een andere schaal is uiteraard ook mogelijk (zie tabel).

De pool-as
De pool-as staat schuin namelijk 23,5° uit het lood, conform de draaiingsas van de aarde in haar baan om de zon.
De buitenwand
De buitenwand van de bol is voorzien van de wereldkaart en compleet draaibaar om de poolas. Op de buitenwand kan zoveel mogelijk informatie worden aangebracht in de gebruikelijke kleuren.
Bezichtiging is alleen mogelijk vanaf relatief grote afstand, zodat slechts de hoofdzaken kunnen worden waargenomen.
De kaart van Nederland wordt circa 1 bij 1,3 meter, zodat slechts de grote rivieren en enkele steden kunnen worden aangegeven.
De evenaar, de keerkringen, de poolcirkels en 24 (of 12) meridianen dienen duidelijk zichtbaar te zijn, zelfs op grote afstand.
Reliëf
De bergen in reliëf zichtbaar maken is op deze schaal nauwelijks mogelijk; de Alpen zouden dan nog geen 2 centimeter hoog worden, zelfs de Mount Everest nog geen 4 centimeter hoog.
Een andere hoogteschaal is een optie.
Dampkring
De luchtlaag waarin wij kunnen leven is nog geen 10 kilometer hoog. Dit betekent rond de Globe 4 centimeter.
Verkeersvliegtuigen vliegen ook vaak op 10 kilometer hoogte.
De ruimte
Het internationale ruimtestation hangt op ongeveer 250 kilometer hoogte. 250 km op deze schaal is 1 meter. Het zou interessant zijn het ruimtestation een plaats te geven op 1 meter boven het oppervlak van de Globe. Het model van het ruimtestation moet dan wel op een andere schaal gemaakt worden b.v. 1:250.
Het leven op aarde
Wellicht is het inspirerend d.m.v. poppetjes verspreid over de hele Globe het bijzondere van het leven op een bol te accentueren.
Verlichting
Verlichting aanbrengen in of op de buitenwand is een mogelijkheid waardoor in het donker de Globe in de wijde omtrek zichtbaar zal zijn.
De aard en omvang van de verlichting vereist een uitgebreide studie door deskundigen.
Satelliet
Een geo-stationaire communicatiesatelliet hangt 30.000 km boven de aarde. Op schaal 1:250.000 wordt dat een afstand van 120 meter. Mogelijk is het een idee om een schaalmodel van een dergelijke satelliet op deze afstand een plaats te geven op het terrein.

Draaibaarheid
Aanvankelijk dacht ik de hele Globe draaibaar te maken en de binnenbordessen af te steunen op de holle as. Het in beweging brengen en houden vergt een kostbaar drijfwerk, terwijl ook de rotatielagers boven en onder, bij de vereiste scheefstand van de Globe en het gewicht van 700 à 800 ton, een kwetsbare en dure voorziening zijn. Nader onderzoek toont aan dat het mogelijk is, en technisch zeer aantrekkelijk, de bolconstructie vast te verbinden met de steunconstructie en alleen de buitenmantel van de Globe draaibaar uit te voeren (door middel van het plaatsen van een groot aantal rolpunten tussen de mantel en de bolconstructie).
De mantel met het vereiste framewerk zal dan geheel uitgevoerd kunnen worden in aluminium. Het gewicht blijft beperkt tot circa 200 ton. Door de aandrijving te kiezen op de grootste diameter wordt deze betrekkelijk licht met een laag energieverbruik.
De buitenmantel kan ook worden uitgevoerd in rvs, glas of kunststof of een combinatie hiervan. Ongeacht materiaalkeuze kunnen de panelen waaruit de mantel wordt samengesteld middels rubberprofielen worden verbonden, waarbij voldoende speling ontstaat voor uitzetting en maattoleranties. Deze naden hoeven niet waterdicht te zijn, daar ook openingen nodig zijn voor de verlichting.
Waterdichtheid wordt dus niet toegepast in de bewegende buitenmantel, maar in een extra stalen binnenwand als onderdeel van de bolconstructie.
Draaisnelheid
De draaisnelheid kan het best praktisch worden gekozen; het bewegingswerk kan worden ontworpen op bijvoorbeeld 1 omwenteling per 3 of 4 minuten. Een lagere snelheid kan desgewenst worden afgeregeld.

Interieur
In de Globe is een amfitheater getekend en een groot bezoekersbordes voor het bezichtigen van het Globe-programma dat geprojecteerd wordt op de binnenwand, vanuit het centrum van de Globe. Als niet-deskundige op dit gebied kan ik slechts gissen naar de mogelijkheden van een sterk, attractief en educatief programma, waarbij de wereldkaart de basis is.

De schuine stand van de aardas kan binnen worden genegeerd. Door de evenaar horizontaal te kiezen, ligt de noordpool in het centrum bovenin; afwisselend kan de zuidpool bovenin worden gekozen.
Het bolvlak kan ook worden gebruikt voor speciale films en als planetarium. Verder is het mogelijk een miniglobe met maan een ronde te laten draaien, zodanig verlicht dat duidelijk de oorzaak en het verloop van de seizoenen kan worden getoond.
Bezoekers
Het aantal bezoekers dat tegelijk in de Globe aanwezig mag zijn, kan slechts in overleg met brandweer en arbeidsinspectie worden gekozen.
De capaciteit van lift en trappen dient ruim voldoende te zijn om in noodgevallen alle bezoekers snel en veilig af te voeren. Daarom is gekozen voor een verticale lift/trappentoren buiten de handvorm van de steunconstructie.
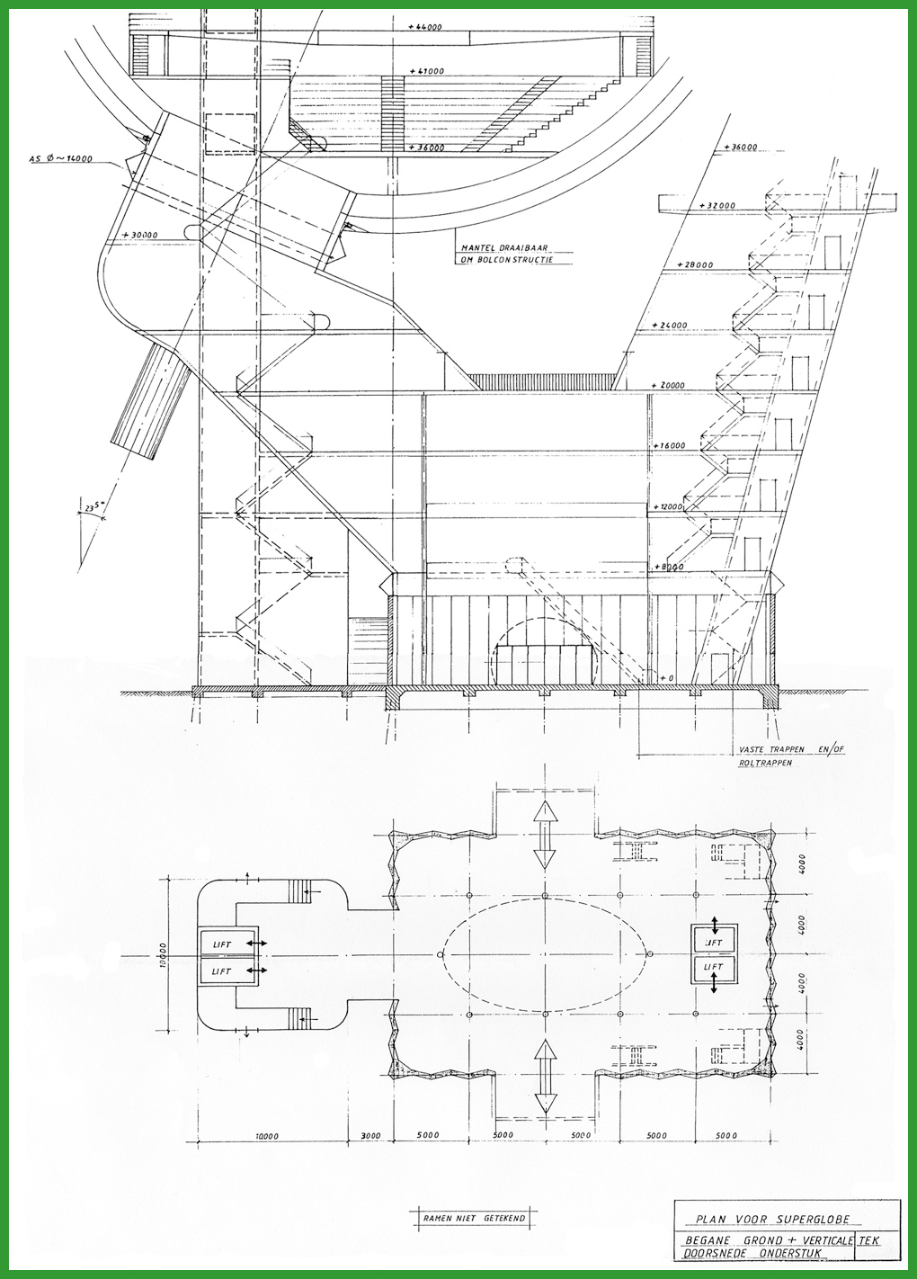
De steunconstructie
De steunconstructie heeft de vorm van een gestileerde hand.
De onderbouw tot ongeveer 6,5 meter is aangegeven in beton met zigzag wanden. De steunconstructie geheel uitgevoerd in verstijfde staalplaat met een minimum dikte van 15 mm ten bate van een strak uiterlijk.
De twee uitgebouwde toegangen bestaan uit een cirkelvormige ombouw van staal of beton met elk 6 deuren. Voor een directe toegang vanaf de begane grond naar het bolinterieur is naast de onderbouw een lift/trappentoren geplaatst met een verbindingsgang naar de onderbouw.

Deze uitbouw verstoort enigszins de handvorm, maar is nodig voor een optimale veiligheid bij een eventuele ontruiming. In de onderbouw is tot op 16 meter een elliptische vide aangegeven van 14 x 8 meter. Boven de 16 meter is de vide niet getekend, waardoor een gesloten vloer ontstaat van 30 x 15 m. Op 20 m hoogte vormt het dak het eerste buitenterras van 9 x14 m. Verder zijn er rondgaande buitenbordessen op 32 m en 48 m. Tevens vormt het dak van het panoramische restaurant een groot buitenbordes op 68 m.
De bovenzijde van de steunconstructie wordt afgesloten met een trapvormig terras van 8 x 25 m, waarvan het hoogste punt op 90 m ligt.
Het topstuk bestaat uit een piek in het hart van de poolas, eindigend in een draaibare, zespuntige verlichte ster op 100 m hoogte.
Middels een prijsvraag kan eventueel een ander ontwerp voor het topstuk worden gekozen.
Het geheel is voorzien van vaste trappen, roltrappen en liften met ruim voldoende capaciteit om de bezoekers snel en veilig naar alle vloeren en bordessen te brengen.
Panoramisch restaurant
Een zeshoekig panoramisch restaurant van 300 vierkantemeter op 64 meter hoogte vormt een bijzondere attractie voor een langer verblijf op hoog niveau ter bezichtiging van de draaiende Globe en de wijde omgeving.
Door ook het dak van het restaurant te voorzien van zitjes, tableaus met informatie over de omgeving, verrekijkers en dergelijke, kan bij mooi weer buiten worden genoten van een aangenaam verblijf.
Misschien is het aantrekkelijk het dakterras te verbinden met het trapvormige bovenbordes via een buitentrap. Vorm en afmetingen van het restaurant zijn aan te passen in overleg.

Plein met torus
Het ligt voor de hand de Globe te plaatsen op een groot open terrein of een speciaal aan te leggen plein. Het ontwerp hiervoor staat op de tekening hieronder. Het hoofdpatroon wordt gevormd door zeven zeshoeken.
Het plein is omsloten door een afgeplatte torus met bovenop een wandelpromenade die kan worden voorzien van luifels. Er zijn vier toegangen aangegeven en zes ellipsvormige vijvers. Uiteraard zijn er vele varianten mogelijk om een dergelijk plein vorm te geven.
Mocht er behoefte zijn aan grotere zalen in de directe nabijheid van de Globe, dan kunnen deze makkelijk geïntegreerd worden in de torus aan de rand van het plein.

Maanglobe en kabelbaan
Tot het plan behoort - bijna logischerwijs - ook een maanglobe.
Op de gebruikte schaal van 1: 250.000 wordt de diameter van de maanglobe 14 meter en wordt de afstand 1520 meter. Een kabelbaan tussen beide globes is dan zeer attractief, maar een andere verbinding is ook mogelijk.
De maan veroorzaakt in belangrijke mate de getijden op onze aarde en het beheersen van deze waterbewegingen is vanouds een dominant aspect van het imago van Nederland. Hierin ligt een extra motief de maanglobe bij dit te project te realiseren.

Locatie
Het vinden van een goede locatie voor de Globe is belangrijk. Tevens dient op ruim 1500 meter afstand een geschikte plek te zijn voor de maanglobe, die eventueel later kan worden gebouwd. De wijde omgeving zal zo moeten zijn dat het verblijf op de diverse terrassen niet alleen aantrekkelijk is voor het van nabij bestuderen van de Globe maar ook van de regio.
De as van de Globe dient noord-zuid te worden gekozen.
Van minder belang is de richting waarin de maan positie krijgt.
Diversen
Slinger van Foucault
De aarde draait per etmaal een volledige omwenteling om de poolas.
Dit is algemeen bekend maar attractief ook zichtbaar te maken met de slinger van Foucault.
Per uur is de draaiing 360:24=15° dus per kwartier 3,75°.
Bij te sterke wind zal het resultaat van de proef te onzuiver worden om nog verantwoord te functioneren. Zorgvuldige studie van de voor- en nadelen kan een besluit over deze attractie mogelijk maken.
Windmolen of zonnepanelen
Mogelijk kan op de top een bescheiden windmolen worden geplaatst om in de eigen energiebehoeften te kunnen voorzien. Eventuele geluidshinder kan worden vermeden door gebruik buiten de bezoekuren.
Ook kan worden gedacht aan zonnepanelen op geschikte plaatsen.
Omdat zeker energiewinning een thema van het Globe-programma zal zijn, is eigen stroomvoorziening uit wind en zon wenselijk.
Zweefstoeltjes
Het is te overwegen de Globe op de zuiderkeerkring te voorzien van 24 spaken met daaraan tweepersoons stoeltjes. Voor de jeugd is het mogelijk attractief een omwenteling van de aarde mee te maken.
De hoogte varieert van ruim 30 m tot ruim 50 m. Het aantal omwentelingen per uur moet nog worden gekozen, maar zal liggen tussen 5 en 10, zodat een rondgang in de stoeltjes ongeveer 8 minuten duurt.
Onderhoud
Het is belangrijk dat bij het detailleren van de bewegende globemantel alle onderhoudsgevoelige onderdelen makkelijk bereikbaar zijn voor inspectie en eventuele vervanging.
Hemelwater
Afvoer van het hemelwater van de Globe dient zorgvuldig te worden bestudeerd en adequaat te worden uitgevoerd. Te overwegen valt of door perforatie van bepaalde rondgaande banen van de mantel het hemelwater kan worden verzameld onder de oppervlakte en van daar afgevoerd.
